
Studentenwohnheim Nürnberg
–––
–––
–––
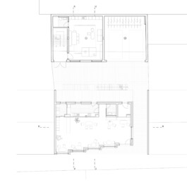
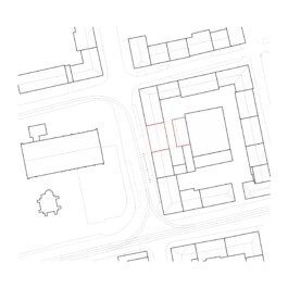
Das neue Studentenwohnheim an der Tafelfeldstraße fügt sich in eine bestehende Baulücke, die seit dem 2.WK unbesetzt blieb ein. Der Neubau integriert ein in die Jahre gekommendes Hinterhaus aus den frühen 1920er Jahren und stellt somit das damalige Ensemble auf dem Grundstück wieder her. Die Struktur bilden Mini- Appartements, die teils einzeln, teils als 2er WG mittels eines rückwertigen Laubenganges erschlossen werden. Dieser Laubengang dient nicht wie üblich dem reinen Zweck einer sehr effizienten Erschließung, sondern formt durch seine tiefere Ausbildung einen zusammenhängenden Freibereich, der die kleinen Wohneinheiten ergänzt und von seinen Bewohner- Innen belebt wird. Die Treppenanlage bestehend aus 4 einläufigen Stahltreppen hängt davor und vernetzt die 6 Geschosse verspielt durch gegenläufige Laufrichtungen. Das Erdgeschoss des Vorderhauses bildet eine Ladeneinheit, die gastronomischen Zwecken (z.B. einem Studentencafé) zugeführt werden soll. Durch einen Rücksprung und horizontale Abtreppung der Sockelzone in Richtung der Hofeinfahrt wird der Zugang betont und gleichzeitig eine Vorzone mit Aufenthaltsqualität geschaffen. Ein Vordach, das sich in seiner Tiefe an der Nachbarbebauung orientiert bietet zusätzlichen Witterungsschutz. Die Fassade spielt strukturell mit den Themen der 60er und 70er Jahre, die in der heterogenen Umgebung vorherrschen. Die Sockelzone wird mit Wandfliesen verkleidet, die Fassade der Wohnungen wird durch große, komplett aufschiebbare Faltschiebefenster gegliedert.Im Hinterhaus befinden sich Gemeinschaftsflächen, Stellplätze für Fahrräder und zusätzliche Studentenappartements, die in zwei Wohngemeinschaften gruppiert werden.




